About the house
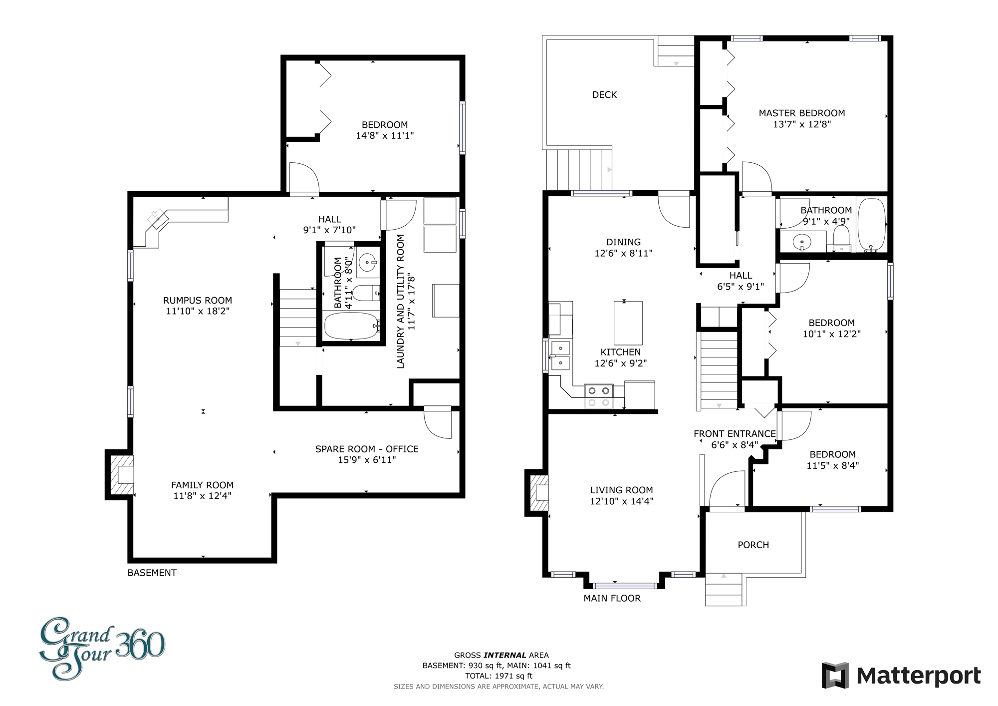
– This wonderful 1,130 SqFt 4 bedroom bungalow features a large kitchen with plenty of counter space for meal prep and family entertaining.
– The living room has a gas fireplace that is comforting and inviting. The master bedroom is large enough for a king size bed and comes with 2 big closets so you’ll never run out of clothing storage!
– The fully developed basement includes a 4th bedroom, den area, and a large family space with a bar area. The new vinyl plank flooring and wood fireplace will make this your favorite place in the home.
– A fenced back yard provides the perfect space for younger families, the home gardener, or just enjoying the sunshine. The front yard has power to the flower beds for landscaping or Christmas lights.
– The double detached garage has been nicely developed and is perfect for those who like to spend extra time in their garage.
– You will love the privacy and extra parking that comes from a corner lot and neighboring green space.
– The living room has a gas fireplace that is comforting and inviting. The master bedroom is large enough for a king size bed and comes with 2 big closets so you’ll never run out of clothing storage!
– The fully developed basement includes a 4th bedroom, den area, and a large family space with a bar area. The new vinyl plank flooring and wood fireplace will make this your favorite place in the home.
– A fenced back yard provides the perfect space for younger families, the home gardener, or just enjoying the sunshine. The front yard has power to the flower beds for landscaping or Christmas lights.
– The double detached garage has been nicely developed and is perfect for those who like to spend extra time in their garage.
– You will love the privacy and extra parking that comes from a corner lot and neighboring green space.
Nearby Amenities
- 3 Schools
- Shopping
- Restaurants
- Police and Fire Departments
- Multiple Parks and Pathways